
【時代濱江】超大公區域自由漫步,實現家的所有暢想!

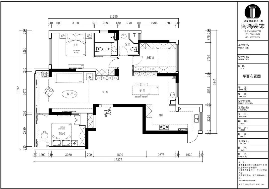
項目信息 / 地址:時代濱江悅 城市:中國 杭州 戶型:三室兩廳 面積:117㎡ 風格:現代簡約 設計施工:浙江南鴻裝飾 設計需要關注人在空間中的狀態,并以此為起點搭建居者與居室的聯系。業主希望一家人能在一個開放的大空間內擁有更多的情感交流,儲物需求也很大,設計師將入戶門廳略做調整,使客餐廚連貫起來,整個公區的尺度更為開闊大氣,再設計出一個獨立的衣帽間,擴充全屋的儲物量。 空間以耐看的高級灰為主調,再融入原木和溫暖的燈光設計,將視覺的高級感和居住的舒適調性相統一,讓空間和居者的內在彼此感知、彼此維系。 #項目戶型 客廳的整體氛圍偏深沉素凈,光線自陽臺涌入,為室內自然增色。高級灰與木色咖色結合,萃取出寧靜詩意。吊頂做的是無主燈邊吊,不壓抑層高,空間擴容效果顯著。 大理石電視背景墻搭配淺咖色科技布材質沙發,加上木飾面和木格柵的造型,使空間散發出靜默恬淡的氣息,讓內心復歸于平靜。 餐廳同樣擁有著和諧的視覺感,立面木作的材質表達一種樸實無華的本色。整排的餐邊柜提供了強悍的收納力,靠窗設計矮柜并添置洗手池,可作為一個實用的水吧臺使用。 井井有條的現代廚房,無論廚電還是物件,都完美隱藏在柜體中,保持外觀的極致簡潔,統一的高級灰色彩也讓廚余之地更顯大氣。 主臥背景墻使用硬包和木飾面做出簡單的層次,并以低飽和度的色彩保持一以貫之的寧靜和低調。吊頂部分“凹出”一個彎曲的弧度并以燈帶補充結構造型,為空間增添高級的質感。 次臥的布局相對緊湊,背景墻不加任何多余的裝飾,陽臺包進并置入了書桌椅的功能,動線便捷流暢。 衣帽間以儲物為主,主人的衣物鞋帽、大的被褥枕頭等都有合適的歸置地,榻榻米的形式也為未來的生活留足了充分的想象和自由的選擇。 衛浴間用玻璃淋浴房做簡易版的干濕分離,墻地的淺色石材營造簡潔明亮的洗漱環境。















免費
免費申請戶型規劃
專屬設計師免費1對1全程服務
已經有3757人申請
24小時免費咨詢電話
400-8800-618
你家預算
108080元