
“都市白領風”裝修?一秒穿進電視劇了!
平凡的日子里,萬千瑣碎就像生活自給自足的光。柴米油鹽醬醋茶,在日復一日中,我們的心態便會愈加從容。
本案這套奶油風三居室由母女二人居住,長輩偶爾過來留宿。設計師在空間中填入溫和柔軟的筆觸,調和色系與光線,詮釋都市時尚居住感。
空間以恬靜奶油色為基礎,通過圓潤、軟糯的奶油風軟裝,來為家賦予簡約、輕盈又具優雅質感的個性。刪繁就簡的風格以純粹包容生活的變化萬千,同時留出足夠的余裕,讓居者自行填充,豐盈內涵。

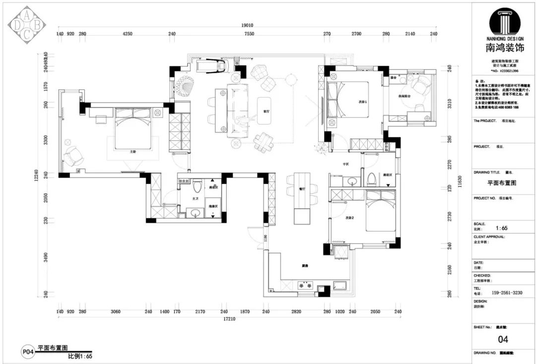
原始結構說明// 戶型面積大,方案可改造空間較多。整體利用率高,基本沒有浪費的地方; 缺點是廚房過小,客廳陽臺小,主臥衣帽間過小等。 設計改造// ①客廳打通次臥并包入外側陽臺,令公區域視野更加開闊; ②廚房擴進北陽臺增加面積,增強采光和動線流暢度; ③客廳與主臥之間定制雙面儲物柜,滿足不同空間的收納需求。

客廳


客廳用奶油白色包覆墻頂地,搭配柔軟的曲線,所給情緒是極為舒緩和溫柔的。去繁就簡的設計風格與開放式格局讓視野敞闊通透,陽光漫灑,在室內輕靈作舞。
留白的同時我們也重視在軟裝上進行一個色彩的平衡,比如拼色款的沙發,比如墻面五彩的裝飾畫,豐富空間層次的同時也讓整個生活場變得溫馨而有活力。


陽臺納入的同時將次臥改造之后,客廳面積擴大,形成高緊密性與互動感的公區,猶如大平層一般。吊頂銜接處利用弧形、弧面遮覆大梁,使視線過渡更加流暢自然。

軟裝上跳躍明媚的色彩,在自然光照射下,綻放出勃勃生機。
電視墻在美觀與實用上做了一個恰當的平衡,開放格展示區加上懸浮式電視柜,弱化柜子的體積感,維持簡約清爽的背景形態。

休閑區


我們將一間次臥轉換為開放式吧臺休閑區,可閱讀、可辦公、可親子陪伴、可小酌,空間自在流通,居住體驗無疑會更加舒適。吧臺立于沙發背后,也避免了沙發“無可倚靠”的情況。

“有時,所謂人生,不過是一杯咖啡所縈繞的溫暖。”吧臺天生便帶著十足的儀式感,一個自由自在無邊漫想的空間,在家里便能擁有咖啡館的愜意享受!
餐廳

餐廳的面積不算大,我們將餐桌與島臺結合,色調上保持極簡的白色,只在餐椅部分做了一些跳躍。

餐廳對于年輕人來說,光實用是不夠的,還得有舒心的顏值。白色法式弧形桌搭配藤藝靠背與不銹鋼落腳組合的餐椅,造型輕盈時尚,空間就像一塊Q彈蛋糕,滋味綿軟香甜~

本案的餐廳靠近入戶門,餐邊柜也因此兼做玄關柜使用,中部留空擺放鑰匙、包包等小物件。
臥室


臥室保持了奶油風的甜美,陽臺作為個人休閑角使用,奶白色烤漆斗柜梳妝臺立于床側,墻面裝飾兩幅優雅掛畫,凝練都市麗人生活感。
衛生間

主衛小巧,但不妨礙我們將之打造為功能性極強的衛浴空間。花磚用以增強活潑感,區域雖放不下大浴缸,擺入一個日式小浴缸增添情趣、滿足泡澡需求還是可以的~
—
·項目信息·
項目名稱:奧蘭多小鎮
設計風格:奶油風
項目類型:三室兩廳
項目地點:中國·杭州
項目面積:141㎡
項目服務:設計·施工·硬裝·軟裝 全案設計
設計單位:浙江南鴻裝飾
施工單位:浙江南鴻裝飾
下一篇:裝修沒做這些的人,都后悔了!
免費
免費申請戶型規劃
專屬設計師免費1對1全程服務
已經有3756人申請
24小時免費咨詢電話
400-8800-618
你家預算
108080元