
木作溫度 X 當代極簡 = 400㎡新中式理想家

項目信息 ■
PROJECT INFORMATION
地址/ 大華西溪風情
城市/ 中國 杭州
戶型/ 排屋
面積/ 400㎡
風格/ 新中式
設計施工/ 浙江南鴻裝飾
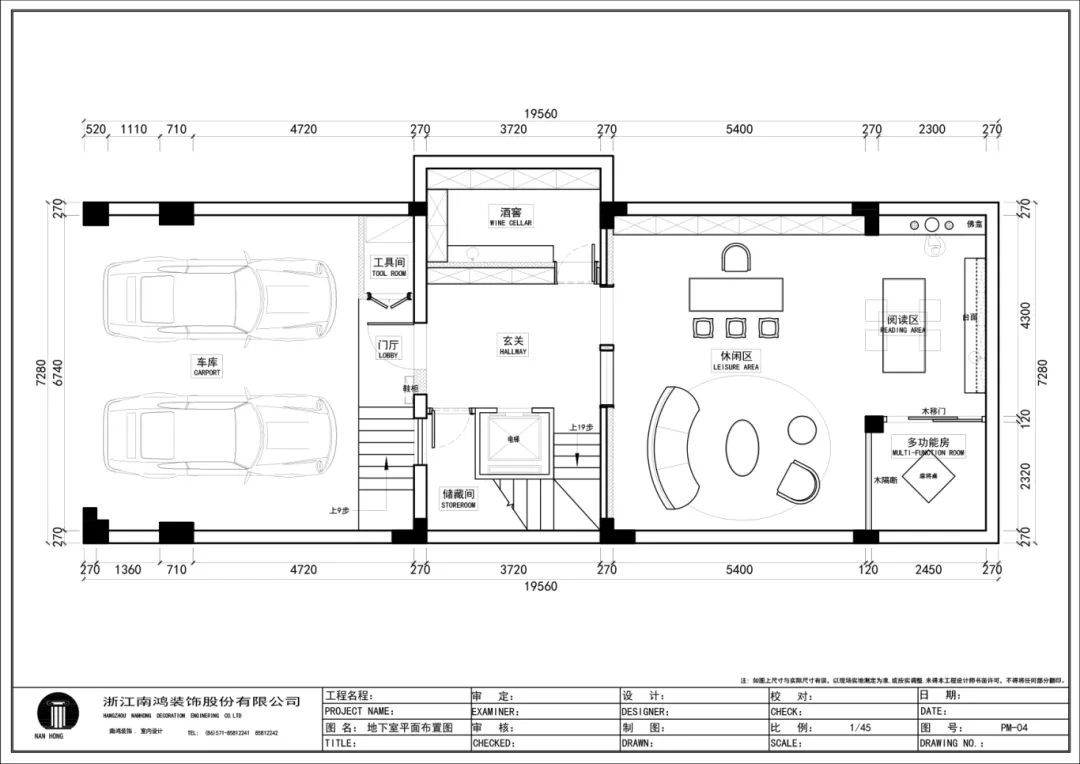
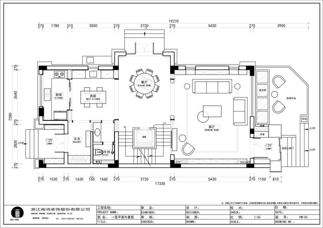
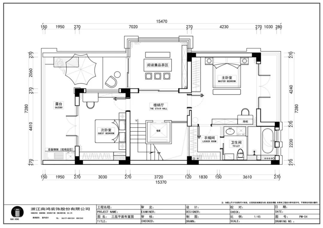
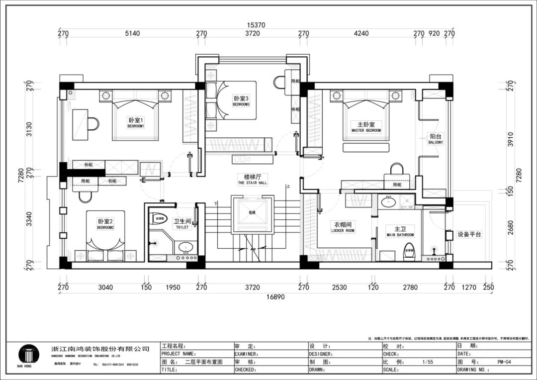
本案這套400方大宅的主人,是一位頗富文化涵養的學者,喜靜,喜愛深色的木材,設計師深刻感知其那從容優雅的氣度,量身打造了這所樸潤謙厚的中式宅邸。 項目秉承大道至簡的理念,以現代化的設計手法和審美,將傳統底蘊與今時情懷融合,質樸自然美與含蓄東方文化相契合,營造超脫日常、回歸純粹的詩意居住環境。 Layout Design 戶型方案 ▲平面方案 Living Room 客廳 以簡為韻,風雅自來。客廳格局敞亮,透過簡潔利落的筆法,構筑起充滿人文氣韻與禮序之美的雅靜空間,穩重溫潤的木色如細水般在室內流動,徐徐鋪展靜謐之美。 造型洗練的沙發、茶幾等中式家具,給人端莊又不失現代感的印象,素雅材質與光影氛圍相襯,營造沉穩大氣的空間基調。 木質鏤空背景墻流淌韻律,自然元素與傳統文化符號的默契組合,既劃定了功能,又能保持區域的采光與通風,細密線條進一步增添立面豐富感。 居室如人。寧靜的木作、簡約的布局,其實皆是主人溫文爾雅學家氣質的無聲彰顯。 感知到居住者的氣息,居室也因此有了聯絡古今的時空對話感。明凈的窗扇映出庭院之景,空間與自然呼吸相融,頂部窗盒亦做了格子造型,全方位表呈中式雅韻。 客廳與餐廚區之間建立了敞開的格局,擴大景深,動靜兩相宜,公區域變得愈加大氣整體,既方便親朋小聚,又能滿足正式的迎賓需求。 相鄰樓梯的墻壁辟出經典花格圓窗,雅致秀美,移步易景,為生活鐫刻更多的古韻意趣。 Dining Room 餐廳 透過開放式的格局動線,客餐廚場域之間形成流暢的、遞進的結構關系,空間與光影、景觀、人文有機融合,呈現溫馨、自由而和諧的生活氛圍。 設計取圓融之意,在餐區規劃“上下雙圓”的美好意境,圓形的頂、吊燈與餐桌,為一家人的圍桌共聚注入了深厚的儀式感。 Kitchen 廚房 廚區實現中西廚的功能分立,玻璃移門阻隔烹炒時的油煙,亦不遮擋光線與通透感。西廚柜整合電器柜與水池操作臺,營建豐滿有序的功能系統。 Bedroom 臥室 二三樓的寢居空間延續深沉穩重的實木質感,簡素凝練的形式,讓空間的每一寸都浸潤了自然的呼吸。時間仿佛也被緩緩拉長,材質的肌理、溫度相互疊加,譜寫美好安寧的閑適日常。





















免費
免費申請戶型規劃
專屬設計師免費1對1全程服務
已經有3756人申請
24小時免費咨詢電話
400-8800-618
你家預算
108080元