
桃花源230㎡ | 在家的方庭,種一片天光云影

本期要為大家分享一套230方現代意式風的案例。
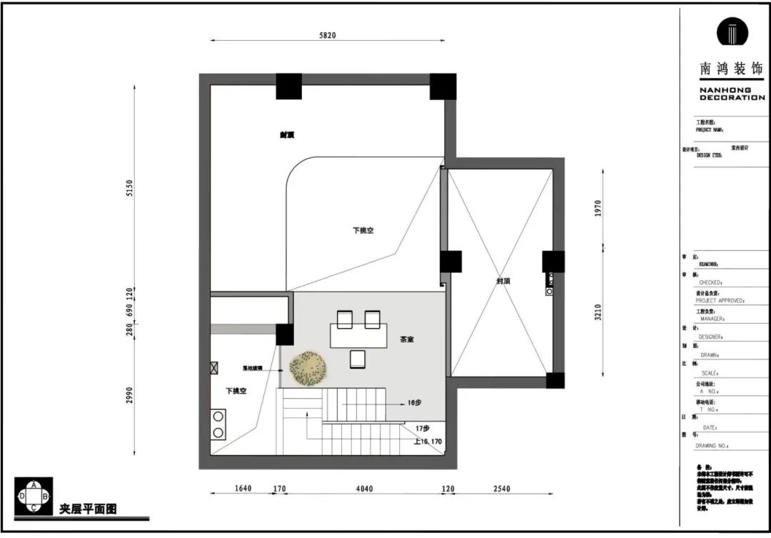
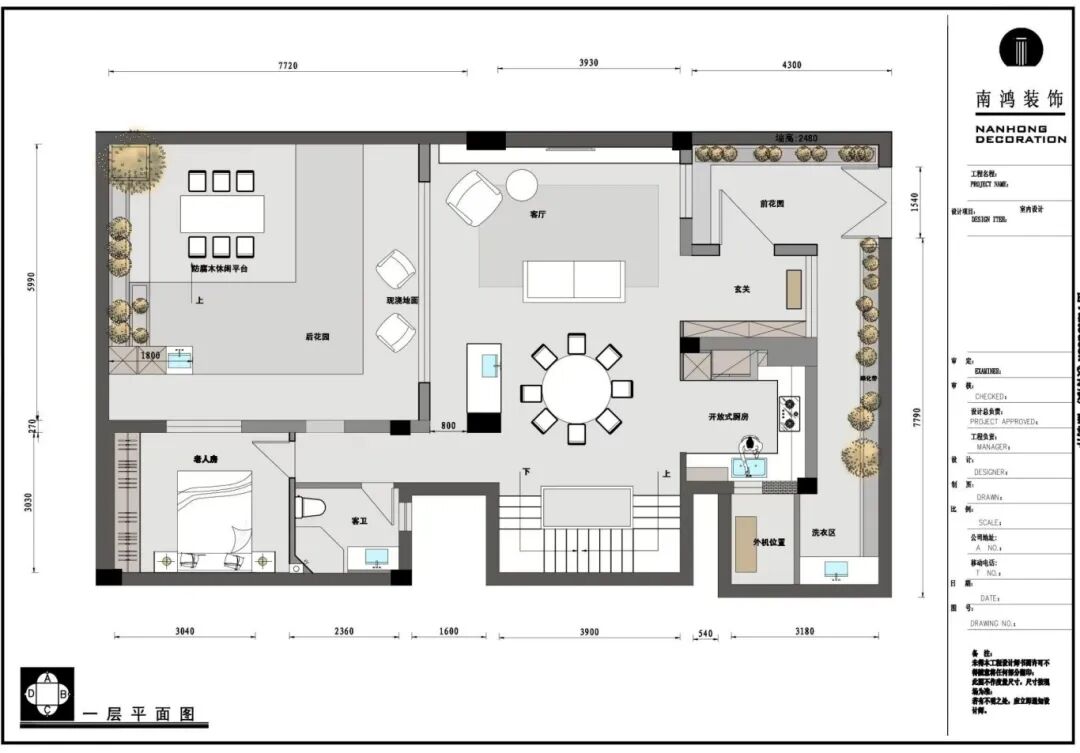
意式風尤為擅長描繪秩序感,通過對材質、色彩和線條的精準把控,達成視覺上的和諧統一。 本案基于多層空間結構,以動線與視野的整體規劃為先導,將居者的生活狀態轉換為精確而從容的設計語言。憑借對材質的細膩甄選、與自然的深度互動,空間褪去外在浮華,真正成為承載日常、安頓身心的居所。 淺木、米灰與暖白的基底搭配深色家具點綴,巧妙融入木材、石材與金屬,空間在克制與留白間,營造高品質生活美學。 ▲平面方案 玄關以懸挑、夾吊等設計手法,營造出輕盈而有張力的視覺效果。寶格麗巖板獨特的動感紋理,展現浪漫與高級的品味。棕質木皮銜接起室內與入戶區的空間聯系,逐步展開的不只是家的格局,更是對生活的想象與期待。 客廳的主角是一款選型挺闊的黑色真皮沙發,沉穩體塊與細膩皮質共同形成視覺上的張力。沙發背后即為開放式餐廳,功能轉換自然流暢,視野開闊貫通。 電視背景墻與玄關的設計手法如出一轍,均采用懸挑與夾吊處理,使墻柜呈現豐富有趣的形態。頂面用軌道燈勾勒線條感,中心區與一側的高低差借助柔和弧度自然過渡,溫柔的曲線為現代空間帶來更多舒緩雅韻。 窗外庭院景致延伸入內,落地窗打破室內外界限,使室內與花園形成靈動的視覺整體。自然光透過玻璃漫入室內,綠意近在眼前,空間不再被墻體分割,而是與自然共生呼吸~ 客餐一體布局,為公共場域注入了更強大的社交基因。借助立柱延伸出島臺,空間的功能更全面,也愈加契合生活軌跡。圓桌與吊燈的對稱構圖,營造沉穩大方的氣質。 廚房利用U型結構展開高效下廚動線,實現洗、切、炒有序銜接。一側利用高柜規整冰箱、蒸烤箱等電器,視覺上更顯簡潔利落。 樓梯原木踏步逐級延伸,觸感溫潤,記錄下居者日常的足跡。燈光從底部泛出,勾勒階梯輪廓,繼以黑質扶手劃出冷靜的直線,賦予空間一種精干的現代氣質。 主臥延續溫潤中性色調,頂部借弧形石膏板設計人字造型,為空間注入柔軟的藝術氣息。室外美景映入眼簾,悄然豐富著居住的體驗與情緒。 主衛選用白色瓷磚塑造這個清爽空間,圓弧形鏡面與圓角的臺盆柜相呼應,以柔和線條弱化冰冷感。浴缸一側開深色壁龕,不僅實用,更通過深淺色對比營造出視覺層次,讓收納也成為裝飾的一部分。 挑空夾層被打造為一處茶室休閑區,在豐富空間功能的同時,也為日常帶入了從容詩意。材質與光線細膩呼應,營造出令人放松的舒適氛圍。 影音區配備坐感極佳的大象耳朵沙發,石材茶幾點綴輕奢質感,角落放置時尚落地燈,讓這里成為了與家人相伴、與朋友暢談的絕妙場所。 庭院設置休閑區域,安放座椅,作為一方身心療愈之所。伴著微風、綠意和花香,沏一盞清茶,這一刻喧囂漸遠,只余安寧與自在相伴,幸福也化作了觸手可及的滋味。 P.I. 項目信息 項目名稱:桃花源 設計風格:現代意式 項目類型:排屋 項目地點:中國·寧波 項目面積:230㎡ 項目服務:設計·施工·硬裝·軟裝 全案設計 設計單位:浙江南鴻裝飾 施工單位:浙江南鴻裝飾




















免費
免費申請戶型規劃
專屬設計師免費1對1全程服務
已經有3765人申請
24小時免費咨詢電話
400-8800-618
你家預算
108080元