
對稱、留白、方圓,204㎡新中式設計,勾勒古典雅致的國風神韻

【項目·信息】
地址 / 寶龍世家
戶型 / 三室兩廳
面積 / 102+102㎡
風格 / 新中式
設計施工 / 浙江南鴻裝飾
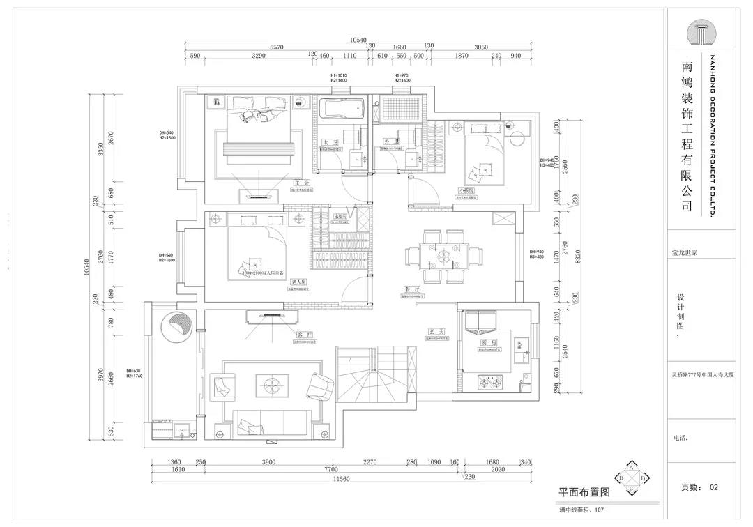
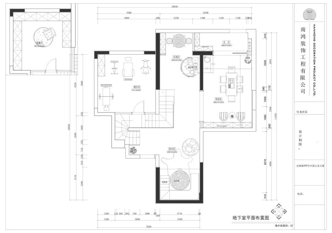
不同于傳統西式的華貴繁復,東方美學講求自然和氣韻,追求樸素、安寧的和諧美感,往往能于古舊間顯露奢雅,達到一種“只可意會,不可言傳”的藝術境界。 本案一層加地下室總面積約204方,新中式風格設計,胡桃木色家具與護墻的裝飾,搭配大氣的石材背景,軟與硬的材質碰撞,深與淺的視覺沖擊,讓這個家充分展現了歷史悠遠、韻味濃厚的國風文化。 戶 型 圖 ▲一層·平面設計圖 ▲地下室·平面設計圖 玄關,線條表現是設計的主軸,借由木格柵虛實相間的效果避免了入戶直視餐廳。左側添加鞋柜增強實用功能,右側為廚房,以玻門相隔。 客廳頗為素樸,自有一股寧靜安詳之氣。家具以質樸的自然肌理表達溫潤的室內氛圍,用心打磨的細節,將傳統中式意境向我們娓娓道來。 富有自然肌理感的大理石電視背景彰顯著居室的華貴氣度,空間布局左右對稱,也是中式風格里一種經典的塑景手法。 一花一草、一器一物就這樣靜置于空間內,自行醞釀著,空邈的意境便油然而生,安靜地熏染著素樸的美學。 餐廳,著意刪繁就簡,回歸生活本真,留白的背景延伸出更廣闊的“象外之境”,渲染出高格調的空間韻味。 廚房,實木櫥柜保留中式特色,U型布局也非常實用,水槽設置在光線較好的一面,看起來整潔又干凈。 臥室提取新中式的大氣格調,又與現代流行方式相碰撞,讓空間去除繁雜、告別沉悶。硬包背景墻嵌入亮色金屬條,創造寧靜而不失精致的氛圍。 明凈清爽的兒童房,通過藍白色調搭配獲得最直觀的視覺享受,明黃跳色點綴出活潑氣氛。 衛生間,白色的石質瓷磚可以放大空間,讓其更顯明亮,厚重的臺盆柜則延續了全屋的中式典雅格調。 茶 室 地下室做一塊茶室區,簡單無需綴飾,一方茶桌,幾張木椅,足以營造清凈而不失風雅的品茶情境。





















免費
免費申請戶型規劃
專屬設計師免費1對1全程服務
已經有3768人申請
24小時免費咨詢電話
400-8800-618
你家預算
108080元