
【學成府】128方裝出了大平層即視感!

地址 / 學成府
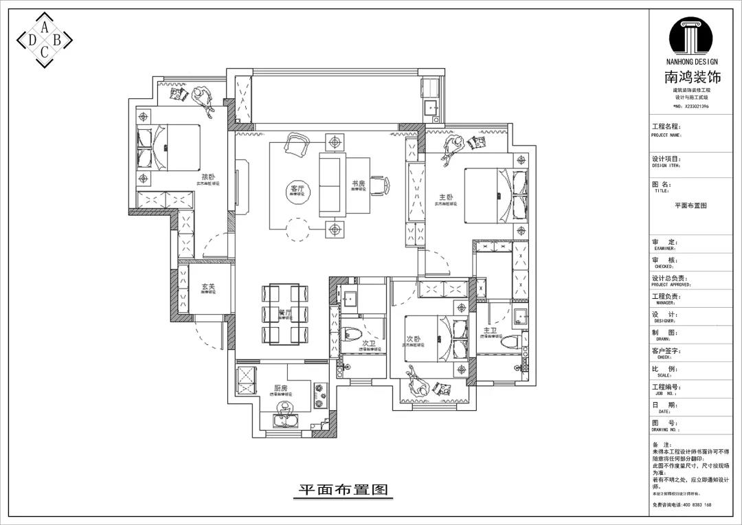
戶型 / 三室兩廳
面積 / 128㎡
風格 / 現代風格
設計施工 / 浙江南鴻裝飾
本案是一套128㎡的現代風格作品,以沉穩的中性質感為主軸,設計上摒棄復雜的形式,通過簡凈的配色、舒適的家具材質,加之合理的空間規劃,構建通透大氣的室內格局。



入戶是一個面積方正的獨立門廳,柜門選擇接近木材的顏色,使空間序列統一,氣質自成。一組玄關柜與燈帶結合,為歸家的人兒提供著便利。


步入客廳,寬闊的空間格局帶來大平層即視感,地面通鋪淺色紋理瓷磚,無主燈設計釋放層高,簡約的布置增強內里的通透感受。




沉穩的中性色彩有力凸顯空間質感,電視背景墻的混拼石材巖板與木飾面門板形成對比,個性的巖石紋理,讓墻面仿若成了一張靜止的藝術畫布,美麗大方。

餐廳與門廳相鄰,功能性和美感兼具,內斂的色調呈現優雅觀感,帶來心靈的放松與舒緩。

廚房,木色櫥柜契合空間整體的低調氣質,安穩沉靜地收斂起日常繁雜。木的柔和與石材的剛硬互補,平衡冷暖。



主臥,自帶優雅屬性的灰藍色背景,給人一種平靜而舒適的邀請感。衣帽間、主衛所在一側墻面選用長虹玻璃,增加視覺通透感的同時,也能減少實體墻給人的硬朗感受。


次臥同樣以素色的壁紙背景呈現安穩的氛圍,素雅的空間、簡單的裝飾呈現一種靜態的時光流逝,放松居者疲憊的心靈。


公共區衛生間位于客廳一側,干濕分離的設計更加人性化,懸空式臺盆柜輕盈視覺,整體的觀感十分清爽。
免費
免費申請戶型規劃
專屬設計師免費1對1全程服務
已經有3757人申請
24小時免費咨詢電話
400-8800-618
你家預算
108080元