
年末盤點 | 最受寵現代簡約風,紅,是有道理的!
以簡潔質樸的設計語言,
創造溫暖舒適并且充滿詩意的家居空間,
這便是現代簡約風格。

鋼筋水泥的城市中, 生活也像被按了快進鍵一樣,日子在忙碌中迅速地流走,人們都在渴望一個靜謐的家,一個可供身心安放的無憂港灣。
現代簡約風格的最大特點大概是“回歸生活本真”,配色與用材雖簡約,但絲毫不會減品質感,反倒是褪去繁復的空間物象,更能呈現我們理想中的愜意家居生活。

2021年也即將走向尾聲,本期小鴻將為您盤點一波本年度那些好康又實用的現代簡約風格案例,帶您感受現代簡約風的純凈美感~


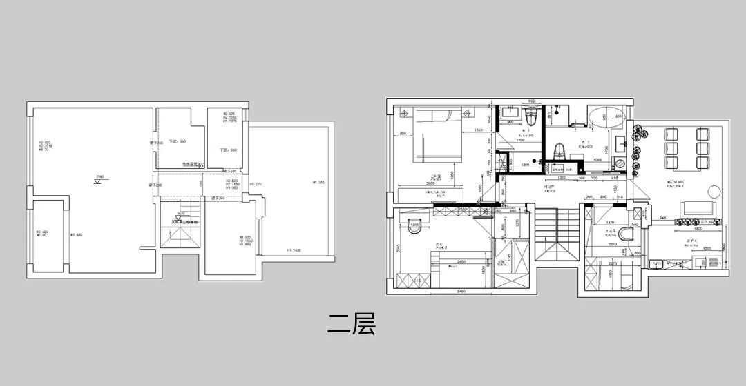
案例亮點:
設計師在空間布局上除了考慮到家長的日常使用習慣與需求之外,把有助于家人聯絡感情的部分也一并加了進去,在一樓的公區域專門設計了親子互動區,一家人可以在這里看看書、做做手工、下棋、拼樂高、彈吉他等等,自由自在地進行互動和分享。





詳情可見:暗香浮動-且以優雅敬生活

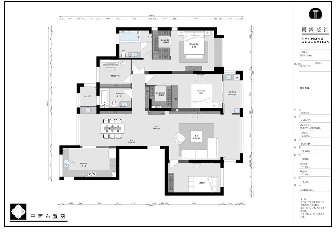
案例亮點:
本案可以說完美詮釋了現代簡約風格簡凈又溫馨的特點,公區域整體采用暖咖和黑白色調,溫和親切又帶著現代感的利落灑脫,木格柵增強視覺效果,軟裝上則重點用橙色點綴,烘托溫馨氣氛與活力感受。




詳情可見:擁有讓人一見鐘情的“高級臉”是種什么體驗


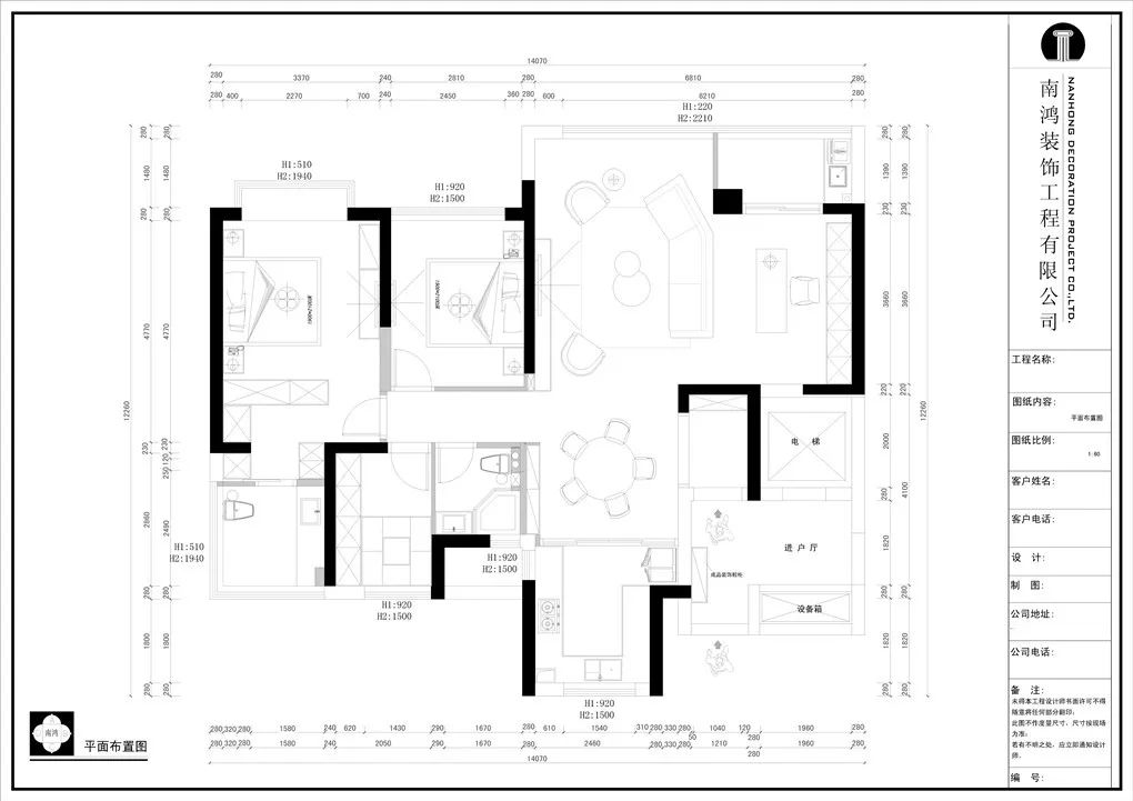
案例亮點:
本案的業主是一名網紅餐廳的經營者,可想而知,他對餐廚區的要求必定也會高于家里任何其他的空間。自由的開放式領域,便是餐廚的最佳設計方案。
本案通過潔凈的配色、高級感的家具材質,以及巧妙的空間序列規劃,再加上通透寬敞的開放式布局,令整體空間在理性的架構中傳達著現代主義的美學觀感。





案例亮點:
舒適簡約的線條搭配黑白灰的經典色調,勾勒出開闊而寧靜的空間氛圍。恰到好處的中性美,沒有固定的形態,卻是能駕馭任何一種風格的高雅。




詳情可見:簡約黑白灰,從不過時,且正當時

案例亮點:
本案的整體設計在注重秩序與功能的同時,同樣采用偏中性的色彩,為空間注入平和而穩重的氣韻,以簡約的形式來表達高級的生活質感。




詳情可見:139㎡現代簡約,讓生活化歸本真的模樣


案例亮點:
一套單身男業主的居所,由于是一個人居住,所以空間改動上比較靈活,原始三室戶型被改為兩室兩廳,公共區域盡可能打開,再飾以現代簡約的隨性愜意,一個優秀的小戶型空間就這樣誕生啦~





免費
免費申請戶型規劃
專屬設計師免費1對1全程服務
已經有3757人申請
24小時免費咨詢電話
400-8800-618
你家預算
108080元