
桂花城 | 這樣的簡奢空間太上頭

【項目·信息】
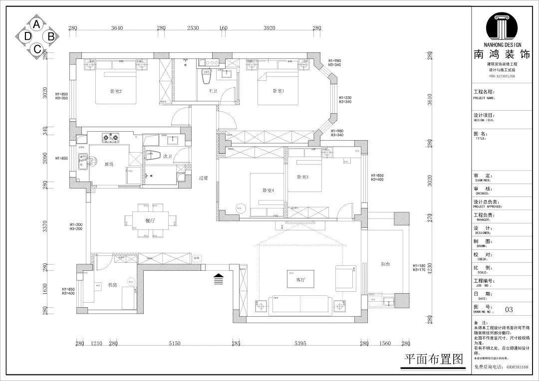
地址 / 桂花城
戶型 / 五室兩廳
面積 / 145㎡
風格 / 現代簡約
設計施工 / 浙江南鴻裝飾
本案為五口之家,業主夫婦與孩子、父母同住,需要的房間數量比較多。設計師在充分遵循業主需求的基礎上,以恰當的設計語言,在創造空間更多的可能性之外,為其尋找能令家更為精致舒適的加法。

客廳
LIVING ROOM


客廳空間十分注重質感的呈現,灰與白打造簡潔明快的基底,大理石材占據C位,與格柵、硬包的結合,盡顯高級氛圍感。

空間足夠整潔大方,以顏色的深淺制造層次和反差并形成視覺的自然過渡。

沙發墻體做多種材質組合,帶來豐富的視覺效果。橙色的三人座沙發與北歐風茶幾以溫暖的光澤中和石材的剛冷,沙發旁置釣魚燈補充邊角光線。

電視背景墻則以整面的木格柵為底,天然獨特的大理石紋理相佐配,加倍的輕奢時尚,空間的理性與沉靜力量得到有力彰顯。

角落放淺灰的懶人沙發,它的職責便是用暖心的“抱抱”來撫平主人每日工作的疲憊~

大理石電視背景上打造有八小格的收納區塊,可以擺放書籍、相冊或是小擺件,總之在空間慢慢地填上獨屬于這個家的記憶,也是一種不小的樂趣呢。
餐廳
DINING ROOM


餐廳是常規的布局,六人位餐桌剛好供一家人的日常使用。墻面隱藏式柜體擴充大量儲物空間,主光源則是一盞簡易吊燈,空間氛圍輕松而自由。

餐廳的裝飾元素上與客廳有著強烈的呼應,空間更加有整體性。過道背景是一幅藝術畫,幽藍的顏色、躍動的麋鹿,讓靈動感撲面而來。
廚房
KITCHEN

廚房,面積不大但功能齊備,高柜融入電器節省空間,顏色也是簡單的灰、白與灰藍的搭配,不需要多么吸睛,簡潔實用即可。
臥室
BEDROOM

主臥延續了空間的整體風格,簡約線條和質感單品共同打造富于現代感的睡眠環境。立面的豎向線條充分延展空間的縱向維度,不凡品味盡數展現。


床尾做一排的衣柜,足夠存放主人所有衣物。主衛與睡眠區之間加入玻璃隔斷,不光是讓視覺通透無礙,光線的流通也解決了暗衛的常見問題。

次臥使用現在比較流行的綠色系搭配,讓感官仿佛浸潤在幽深的森林中,耳邊有著自然的寧靜呼吸~
衛生間
BATHROOM

主衛因玻璃隔斷的存在而省去了光線不足的煩惱,淺色進一步放大空間,黑色的電熱毛巾架有效增添舒適。
免費
免費申請戶型規劃
專屬設計師免費1對1全程服務
已經有3757人申請
24小時免費咨詢電話
400-8800-618
你家預算
108080元