
南鴻裝飾7月全體設計師會議順利召開
設計是裝修項目的第一個重要環節,品質交付的第一步就是從設計開始。
南鴻定期舉行設計師大會,目的正是給設計師們提供一個作品分享、專業交流的平臺,讓他們可以站在客戶的角度,用更加宏觀的思維去看設計方案的整體規劃,繼而取長補短,不斷提升自己的專業水平。
在剛過去的上半年,由于疫情的復發,許多工作一度陷入停滯,有賴于政府的宏觀調控與各界人士的共同努力,社會也慢慢回歸到了正常的秩序,南鴻也得以將設計師大會重新開始舉行。



在此次久違的設計師會議上,祝董表示,品質工程是裝企在行業立足的基礎,設計與工藝是分不開的。南鴻在前不久也發布了行業標準工藝白皮書,充分彰顯了南鴻做好工藝的決心和信心。認真的學習態度,從一而終的工匠精神與鉆研精神,都是企業能夠長足發展所必不可少的。無論是公司還是個人,都要堅持創新堅持突破,做好服務做好交付,南鴻的明天就會越來越好。


陳總講話,對公司表現突出的幾位年輕設計師表示充分的肯定與鼓勵,也對剛加入南鴻的新人設計師表示了熱烈歡迎,同時重申了公司財務審批上的注意點,希望所有設計師都能嚴格遵照公司章程,依據公司規范。

會上,李總還做了以“當前形勢下的努力方向”為主題的演講,從宏觀層面為設計師們理清形勢,分析問題,指明目標,提振信心。

當前由于疫情影響,經濟呈下行趨勢,人們的消費信心普遍不足,針對這種情況,李總表示設計師們應該積極調整心態,加強品質服務意識,把服務真正做到客戶的心里去,這樣才能建立起與客戶之間的信任關系,實現共贏。
李總同時也為大家闡明了南鴻開辦杭州之翼5000方新展館的意義。以全案設計為切入點,以產品交付為落腳點,新館的搭建,讓家裝的零售屬性更好呈現,也讓南鴻的服務范圍得到更廣延伸,讓更多的業主都能享受到南鴻的品質服務。

本次7.11設計師大會上還有五位設計師帶來他們的優秀作品,以及供應商和公司產品部、軟裝部、工程部共同為設計師們所做的知識分享,一起來看看吧~
(以下五位設計師的優秀作品點擊
實景圖片鏈接,即可詳細欣賞哦)
設計一部葉如意 / 前灘名邸

這是一套針對年輕業主夫婦打造的侘寂風格作品。業主夫婦長期游歷國外,藝術素養與生活品味高,葉老師團隊便為他們選擇了時下流行并最能凸顯精神美學的侘寂風。

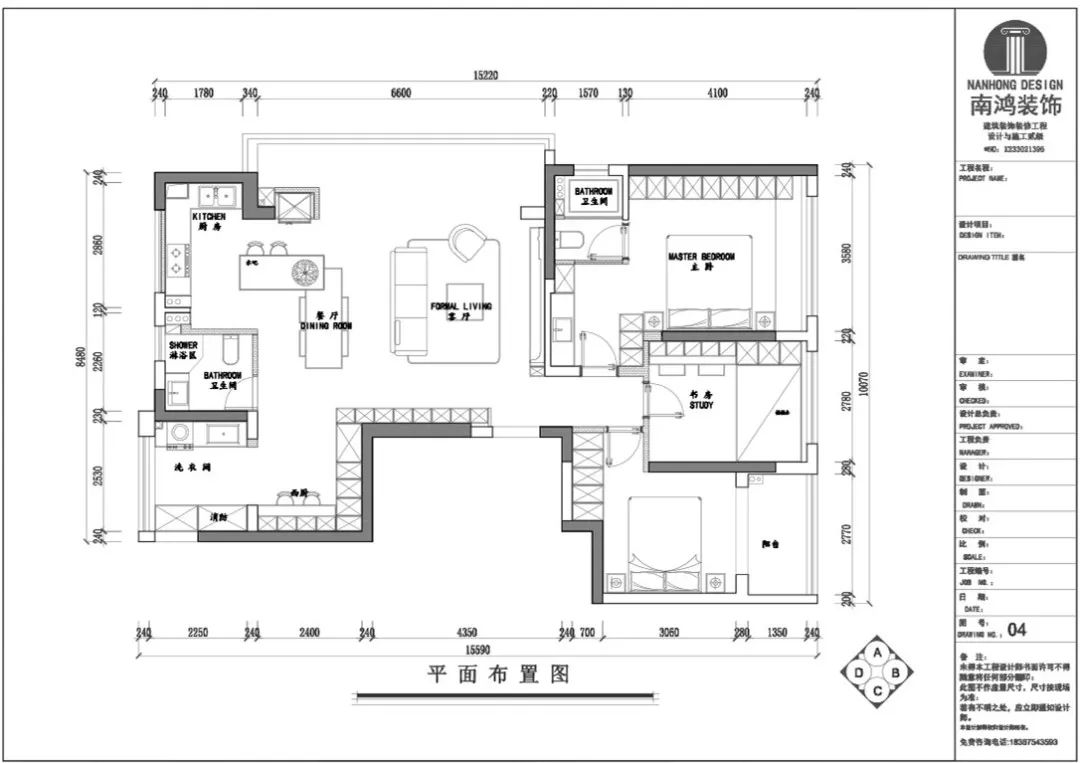
【戶型設計】 前灘名邸 / 160㎡ / 侘寂風
“侘寂”某種意義上與茶道是相通的。靜心清志,孤寂自在。于都市喧囂中保持自我是為“清”,在靜中感受時光的流逝是為“寂”。簡樸、節制、自然、親切,侘寂風所帶給人的美學享受可以說是回味無窮的。
原木、藤編、亞麻、弧面弧形,以及奶茶色的漆飾面,讓這個居室在清靜、寂寥之外,也多了些溫馨與家的煙火氣息。而每一處細節布局,都仿佛藏著一段悠遠的故事,串聯起整個場域的藝術張力,讓人印象深刻。
效果圖▼


實景欣賞▼
設計二部趙航杰 / 盛元慧谷

這是一套規整而有序的新中式風格案例。房子是江景房,窗外風景優越。設計師運用比較深的胡桃木材質架構起居室,使風格傾向于沉穩,并用素色墻布加以調和。

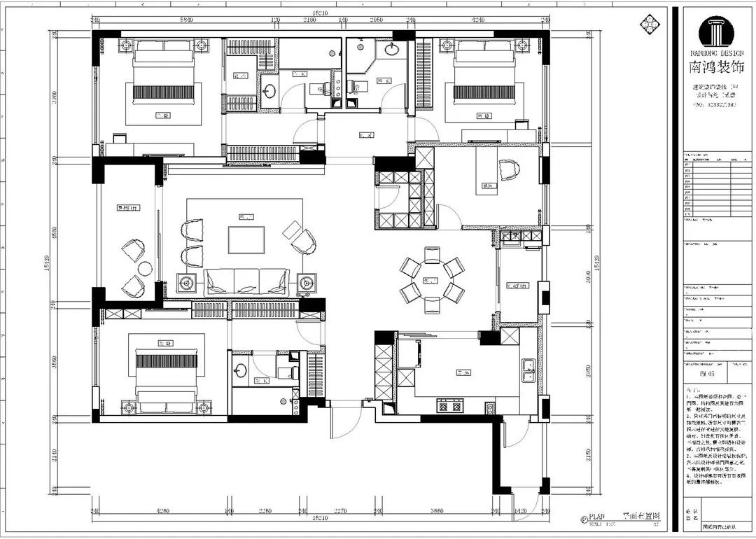
【戶型設計】 盛元慧谷 / 150㎡ / 新中式
陽臺被設計為休閑茶區,與客廳之間特意做了帶有中式意味的月洞隔斷,整個公區域開放敞亮,采光充足。
納容之道,美美與共。外觀自然,內應自在。正所謂偷得浮生半日閑,每個人在繁忙的工作之外,大概都需要這樣一個浸潤身心、放松心靈的棲居之所吧。
實景欣賞▼
設計四部尹亞亮 / 西溪郡

一套精致又有情調的法式復古風作品,由四部的尹老師帶來。本案的女業主與我們的設計師可以說意趣相投,所以項目的推進頗為順利,作品的落地性也很強。

【戶型設計】 西溪郡 / 120㎡ / 法式復古
法式最重要是營造優雅有情調的氛圍,在本案中,大量絲絨材質與雕花石膏線條能著重凸顯法式的格調,弧線柔軟結構,色彩取用上也十分大膽,可以說每塊區域都有自己的個性,不是千篇一律。
設計師在餐廳做的懸浮式卡座也是本案一大亮點。餐廳本身面積不大,而男業主又堅持想要圓桌,所以最后想到了卡座的形式,這樣既滿足業主的需求,也讓空間的美觀度提升了一個level~
實景欣賞▼
設計六部李玲 / 時代濱江悅

一套能讓人感受到生活的無限美好的輕侘寂風格作品,由六部李玲老師帶來。最開始的方案業主覺得稍有點“重”,所以設計師加入了現代極簡的元素,讓作品更傾向輕侘寂的基調,看起來清爽迷人。

【戶型設計】 時代濱江悅 / 135㎡ / 極簡輕侘寂
本案中電視背景墻的設計非常有個性,塊面一路延展至陽臺,干凈無冗余,加上軟裝的搭配,空間呈現一種克制卻非常有張力的美。
餐廚在開放式基礎上融入西廚和島臺,功能強大,動線流暢,儲物豐富。在材質的選擇上也十分多樣,原木與藤編的組合散發著親切的自然氣息。
實景欣賞▼
設計三部許麗麗 / 艮山府

最后是由三部許老師帶來的現代風格艮山府作品。在現代主義的基礎上,設計以簡約的筆調勾勒空間,美觀性與實用性結合得恰到好處,正符合當代人對生活環境的需求。

【戶型設計】 艮山府 / 196㎡ / 現代
空間為冷靜的高級灰所主導,低調內斂,色彩搭配簡單卻有層次。全屋的木與剛冷的石材結合,沉靜的氣息與凌厲的現代感即被完美融合。
當代人居的歸屬感,很大程度上取決于私密空間的構造。設計師在主臥中應用了猶如深潭一樣幽靜的藍,并利用現代材質與傳統意象的對話,顯露出獨特的意味和美感。
實景欣賞▼

樂家衛浴:此次為設計師們詳細介紹了涵蓋在南鴻套餐中的樂家品牌衛浴產品,包括它們的具體參數,幫助設計師們更好地為到店客戶服務。


產品部:介紹展廳內產品升級的最新動向與未來發展。
免費
免費申請戶型規劃
專屬設計師免費1對1全程服務
已經有3754人申請
24小時免費咨詢電話
400-8800-618
你家預算
108080元