
傳統三居秒變大平層?是時候見證神奇的空間轉換術了!

作品前言
本案業主是一位做自媒體的烘焙博主,最大的需求就是擁有寬敞自由的下廚空間。家里還有一個孩子,公區域需要盡量寬敞,并增加專門的閱讀區。

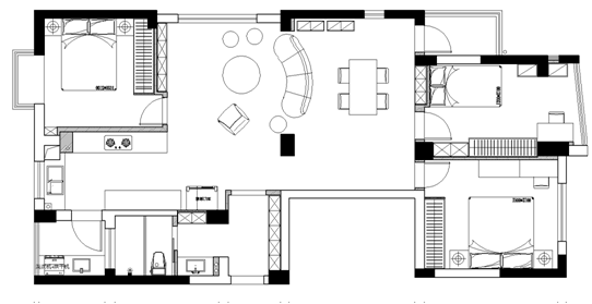
原始戶型廚房面積不夠,還有一個長過道的問題,設計師根據居住者的入住需求,將屋內所有多余的非承重墻拆除,把客餐廳連成統一的區域,利用承重柱依次規劃三個房間、廚房、衛生間和陽臺,實現開闊流暢的生活動線,構筑靈活可變的新秩序。
戶型設計 | Layout

優點:衛生間和玄關區域較大。
缺點:原戶型有比較長的過道,次臥不夠方正,廚房面積太小等。

設計改動>>
①次臥室與餐廳進行互換,讓客餐廳連在一起。
②廚房墻體內推30cm,做出U型的操作臺,開放式設計更加通透。
③房子中間的承重柱全包木飾面,做出書架,緊鄰沙發,形成孩子的閱讀區。
④陽臺包進來擴大兒童房的空間。
實景呈現
>>玄關

根據居住者的生活習慣進行動線規劃和功能分區,才能實現真正的人性化設計。木質的玄關柜提供換鞋凳、掛衣、儲物等功能,帶來方便高效的出入戶體驗。

通往客廳的視角,明亮的光線進一步放大整個家通透的空間感。
>>客廳

極簡的線條與色彩搭配,融入現代都市的科技感,加上靈巧的布局,整個空間給人的感受是明朗而自在的。

少而精的軟裝布置詮釋以簡勝繁的設計真諦,沙發一側利用承重柱做出書架,承載著父母對孩子健康茁壯成長的期待。

電視背景墻做隱形門的處理,實現公共區和休息區的完美過渡。


>>餐廳

夢幻簾將光過濾得柔和而舒適,當它串聯起客餐廳兩塊區域時,視線也因此變得無比流暢。

省去所有多余裝飾,是讓空間維持格調感的關鍵。餐廳與客廳融為一體,僅保留最基礎的功能,輕盈時尚的餐桌椅疊加上層層光影,讓用餐氛圍更加輕松愉悅。

餐邊柜穩穩地藏于墻面,方便主人取放杯盞和收納零碎物品,還能做水吧臺使用。

過道處定制黑板墻,讓孩子能夠自由涂鴉書寫,豐富空間與生活的雙重意趣。
>>廚房

作為烘焙博主的家,廚房自然是所有區域中的重頭戲。雙開門的大冰箱融入過道,開放式設計放大空間感,操作臺與柜體的富余為美食烹飪提供清爽有序的環境。

廚房的櫥柜、臺面和墻地磚均選用淺色,空間十分明亮大方。洗切區被安排在窗戶下,優秀的采光讓日常的下廚體驗更加舒適。
>>主臥

主臥選擇溫和的茱萸粉,甜蜜得像一顆糖果,局部燈光便于營造休憩時的氛圍。

床尾擺放了可移動的掛衣推車,別看只是個小物件,卻能輕松方便地解決日常的掛放需求。
>>兒童房


兒臥主打簡約的灰白色,在擴進陽臺后空間變得更加開敞。兒童房的設計需要考慮到孩子的成長曲線,因此足夠的儲物區和亮堂的學習區都是必不可少的。
>>衛生間

衛生間做干濕分離,臺盆區灰色的外觀沉穩又有氣質。巖板臺面易于清理,實用的鏡柜讓日常的洗漱井井有條。
——
/ 項目信息 /
地址:三塘人家
城市:中國 杭州
戶型:三室兩廳
面積:113㎡
風格:現代風格
設計單位:浙江南鴻裝飾
施工單位:浙江南鴻裝飾
- Thanks For Watching -
免費
免費申請戶型規劃
專屬設計師免費1對1全程服務
已經有3757人申請
24小時免費咨詢電話
400-8800-618
你家預算
108080元